10507 Lisa LaneLas Vegas, NV 89179


Mortgage Calculator
Monthly Payment (Est.)
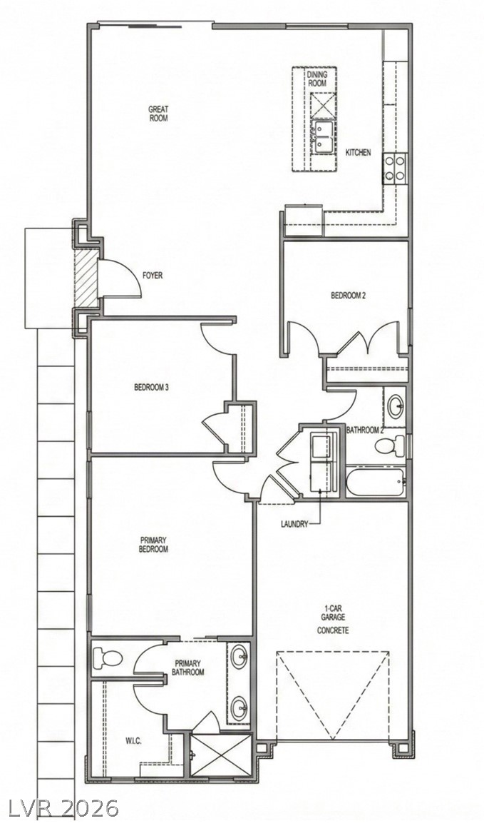
$2,201Welcome home to Cactus Bloom! This charming 19 home community is located just south of Mountains Edge and surrounded by scenic BLM land. Enjoy the prime location but without the high HOA fees and no SIDS/LIDS!! This hard to find single story home comes with 2 bedrooms plus den (or optional 3rd bedrooms), 2 bathrooms, and a single car garage. Additional standard features include tankless water heater, outdoor BBQ stub, quartz countertops, 42" upper cabinets in kitchen, large laundry room, and more! (floor plan depicts bedroom 3, but this will be a den/office, but you still have time to make it bedroom 3 if needed!) Home comes backed by 2-10 with a home and structural warranty, and be sure to ask us about our great builder's incentives with our preferred lender!!
| 3 weeks ago | Listing first seen on site | |
| 3 weeks ago | Listing updated with changes from the MLS® |
Listing information is provided by Participants of the Greater Las Vegas Association of Realtors. IDX information is provided exclusively for personal, non-commercial use, and may not be used for any purpose other than to identify prospective properties consumers may be interested in purchasing. Information is deemed reliable but not guaranteed. Copyright 2026, Greater Las Vegas Association of Realtors.
Last checked: 2026-03-07 07:19 AM UTC

Did you know? You can invite friends and family to your search. They can join your search, rate and discuss listings with you.